Kontakt

Straubinger Straße 30
93055 Regensburg

info@zw-ingenieure.de

+49 (0) 9403 9688-992

Ort
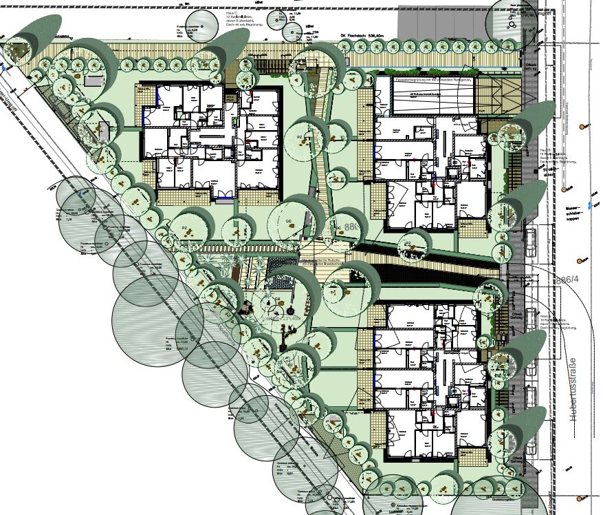
Fürstenfeldbruck

Hubertusstraße, Fürstenfeldbruck

Neubau von 3 Mehrfamilienhäusern mit zugehöriger Tiefgarage (48 WE)

Leistungsbild: LPH1-5 – HLS

Einsatz einer Wasser-Wasser-Wärmepumpe für ein nachhaltiges und effizientes Haustechnikkonzept