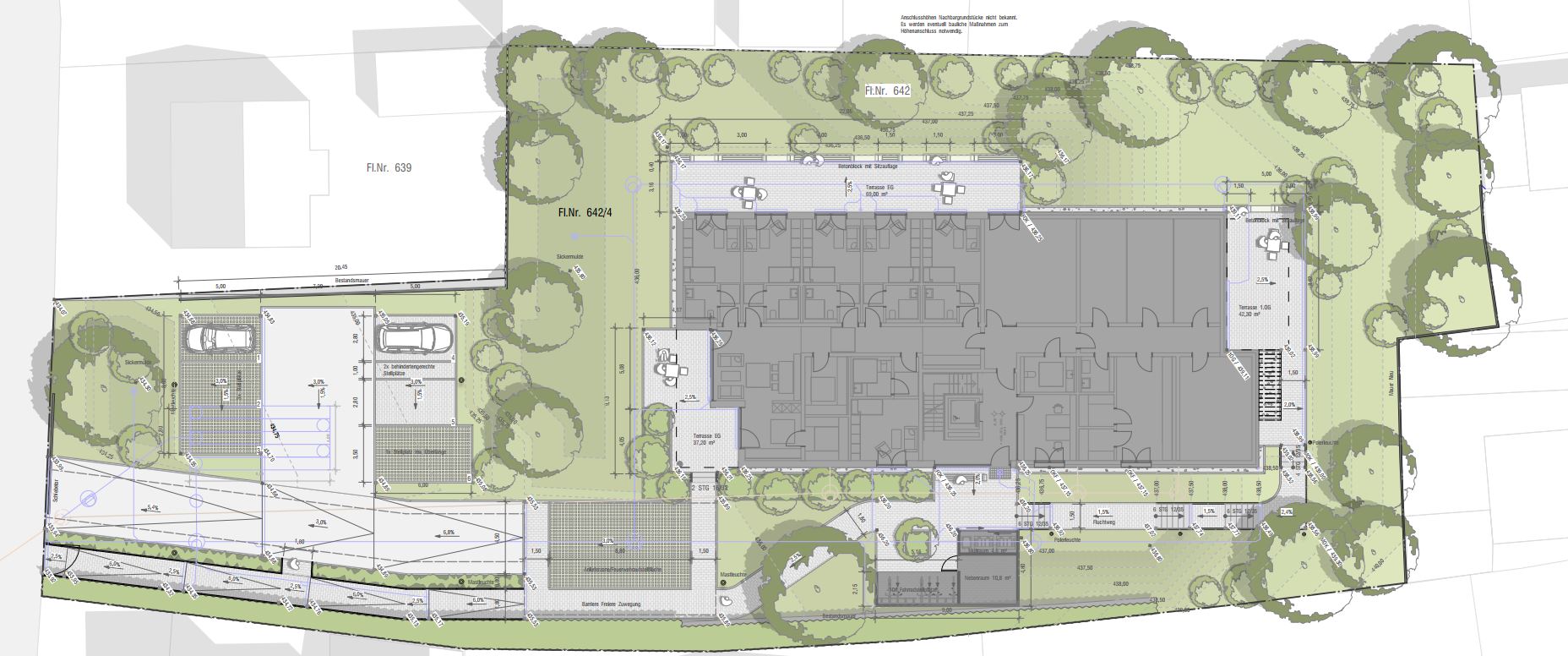
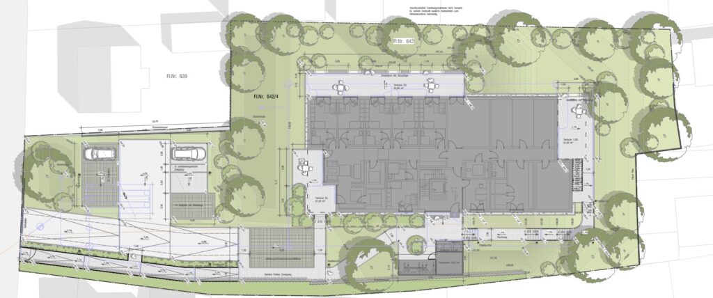
Wohnheim Auerbach, Auerbach i. d. Opf.
Neubau eines Behinderten-Wohnheims mit 20 Plätzen
Leistungsbild: LPH1-8 – HLS
Auftraggeber: Regens-Wagner-Stiftung
https://regens-wagner-michelfeld.de/

Straubinger Straße 30
93055 Regensburg
info@zw-ingenieure.de
+49 (0) 9403 9688-992
Neubau eines Behinderten-Wohnheims mit 20 Plätzen
Leistungsbild: LPH1-8 – HLS
Auftraggeber: Regens-Wagner-Stiftung
https://regens-wagner-michelfeld.de/